DBA … Exklusiv! Ladenfläche + Büroetage Schwanthaler Höhe
DBA … Exklusiv! Ladenfläche + Büroetage Schwanthaler Höhe
Eckdaten
- Art Verkaufsfläche
- Lage 80339 München
- Mietpreis pro m² 24,25 €
- Bürofläche ca. 779 m²
- Baujahr 2004
- Gesamtfläche ca. 779 m²
- Heizungsart Zentralheizung
- Aufzug ja
- Bezugstermin ab sofort
- Fahrzeit Hauptbahnhof 10 min
- Fahrzeit nächste Autobahnauffahrt 10 min
- Fahrzeit nächster Flughafen 40 min
- Bodenbelag Teppichboden Parkett Nach Mieterwunsch PVC
- Immobilien-ID 877
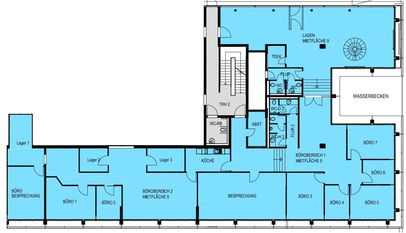
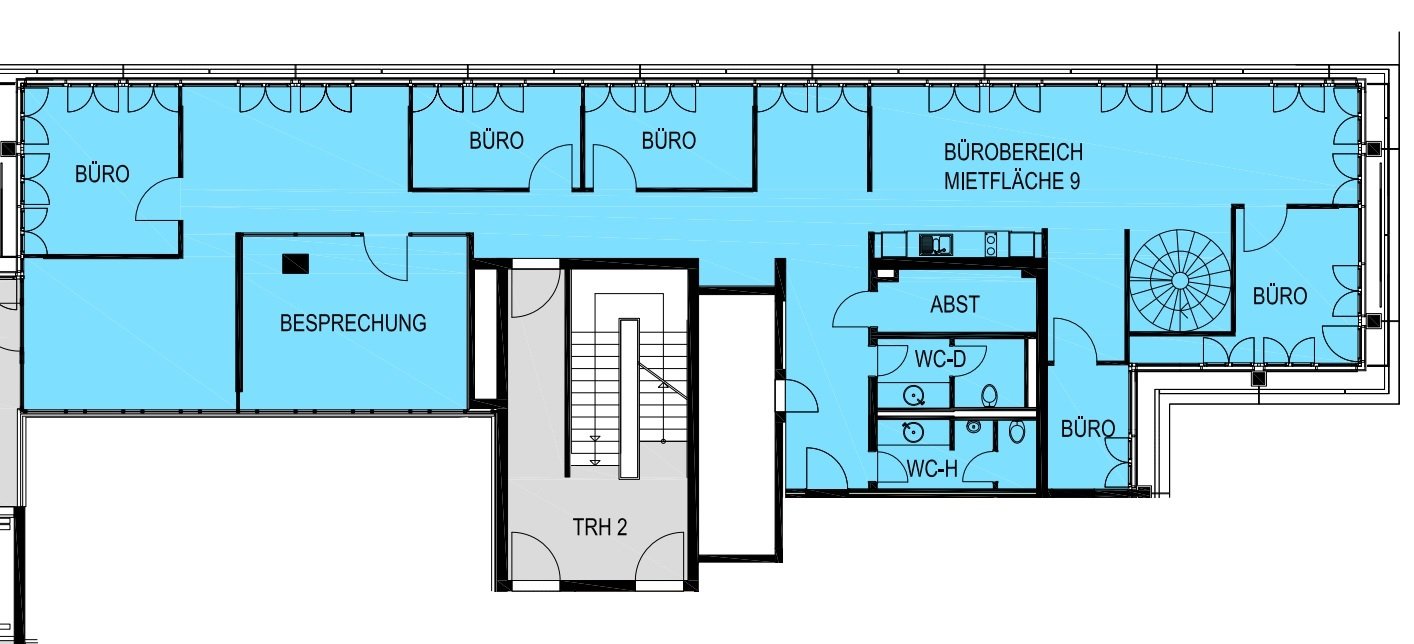
Immobilie
Im Jahre 2004 mit Blick auf architektonische Details erbaut. Die Fassade ist mit Glas verkleidet und hat bodentiefe Metallfenster erhalten.
Die Kombination aus Einzelhandelfläche im Erdgeschoss sowie Büroflächen im 1. OG, welche durch die Innentreppe zu erreichen sind, bietet Ihnen eine Vielzahl an Möglichkeiten.
Die öffentliche Verkehrsanbindung ist hervorragend, die U Bahnstation befindet sich direkt vor dem Gebäude.
Stellplätze können in der hauseigenen Tiefgarage angemietet werden. Archiv-/Lagerflächen sind im Untergeschoss anmietbar.
Lage
– zwischen Am Bavariapark und Kazmaierstraße
– Die U-Bahnstation der Linien 4 und 5 sind direkt vor dem Objekt nur 30 Meter entfernt
– in der nahen Umgebung ist eine Vielfalt an Restaurants und Cafés zu finden
– der Bavariapark mit seinem schönen Biergarten, ist in 3 Gehminuten
zu erreichen
– gehobene Wohn.-und Geschäftslage
Ausstattung
– WC
– Personenlift
– Teeküche
– flexible Raumaufteilung (in Absprache mit dem neuen Mieter)
– Bodenbelag nach Anforderungen und Absprache mit Mieter
– außen liegender Sonnenschutz
– Tiefgaragenstellplätze
Bebaubarkeit
.
Sonstiges
– Stellplätze können in der hauseigenen Tiefgarage angemietet werden. Archiv-/Lagerflächen sind im Untergeschoss anmietbar.
– Provisionsfrei bei Abschluss eines 5 Jahresmietvertrages
Haben wir Ihr Interesse geweckt?
Gerne übersenden wir Ihnen das detaillierte Expose und besprechen Ihr Anliegen telefonisch oder persönlich mit Ihnen.
Sie haben Fragen? Kontaktieren Sie uns und wir starten Ihre individuelle Betreuung mit Beratung und finden Ihr Wunschobjekt.
We realize your Project
Sämtliche Objekt bezogenen Angaben in diesem Exposé stammen vom Eigentümer. Für die Richtigkeit und Vollständigkeit unserer Angebote können wir keine Haftung übernehmen.
### Wir haben noch viele weitere interessante Objekte ###
Erfahren Sie als erster, wenn in Ihrem Wunschobjekt eine Einheit frei wird!
Neue Objekte für Sie vor Veröffentlichung.
Diese finden Sie unter Bueroagenten.de oder rufen Sie uns an 089 379 49 651
Energieausweisangaben
- Enerigeausweistyp Bedarfsausweis
- Energiekennwert 68 KWh(m²*a)
- Energieausweis erstellt am 02.05.2013
- Energieausweis gültig bis 01.05.2023
- Heizungsart Zentralheizung
- Befeuerung / Energieträger Fernwärme
Rechtliches
PROVISIONSFREI- bei Abschluß eins Mietvertrages mit einer Mietdauer von min. 5 Jahren
Herzlichen Dank für Ihre Anfrage.
Wir werden diese so schnell wie möglich bearbeiten.

